2660 Sarnen Street

Suite Total SF Lease Rate Comments
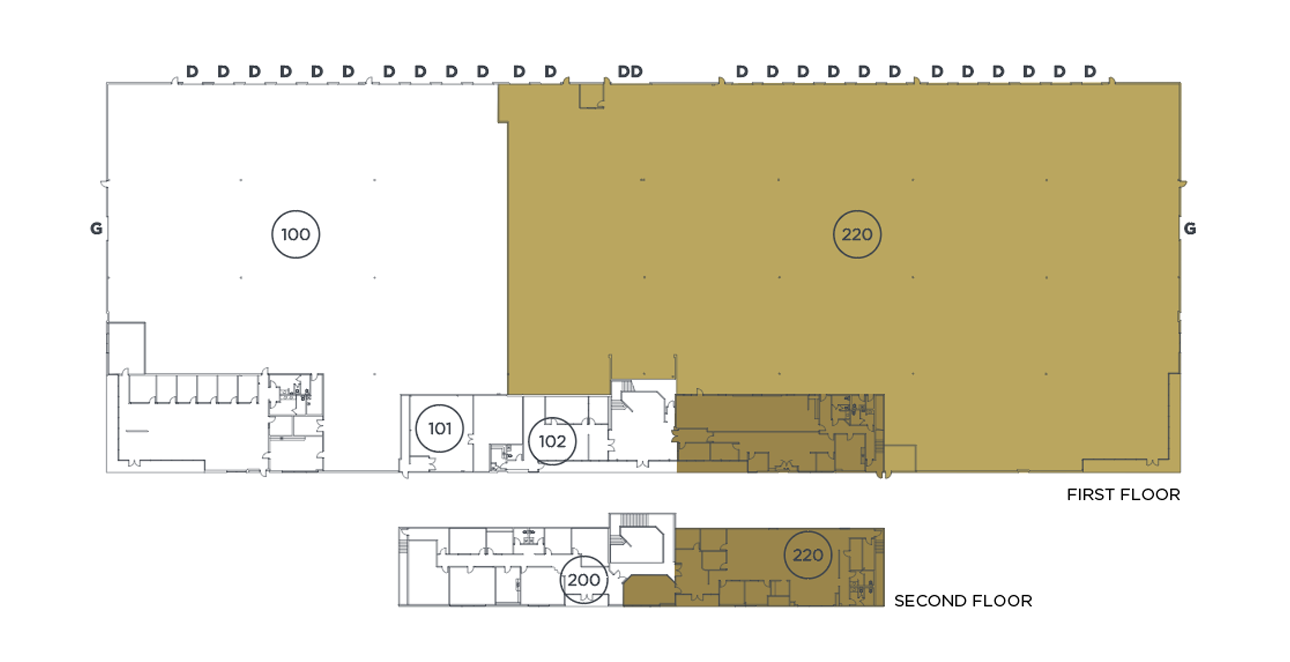
100-101 • 41,750 Call for Rate Details Private Office, Conference Room, Break Room

Features

  • 41,750 RSF Total
  • 5,725 RSF of Office Space
  • 24’-26’ Minimum Clear Height
  • Fully Sprinklered .50/2,000 SF GPM
  • Electrical: 3-phase service with 400 amps of 277/480 volt
  • Dock High Positions: 10
  • All dock positions come with hydraulic pit levelers, Dok-Loks and light communication kits.
  • Grade Level Doors: 1
  • Private Offices
  • Conference Room
  • Break Room
  • Close Proximity to Otay I Border Crossing
  • Located within FTZ Zone 153
  • Available 9/1/2026
Download Floor Plan PDF